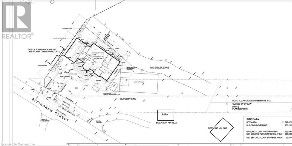
LOCATION, LOCATION, LOCATION! This fabulous 2.9-acre treed ravine lot is situated on the Niagara Escarpment. Build your dream home on Effingham Street, just a short walk from Short Hills and Henry of Pelham Estate Winery. The lot has frontage on both Effingham Street and Louth Townline Road, but the building envelope is on Effingham Street. It is located directly south of 2910 Effingham Street and directly east of 160 Louth Townline Road. Please park on Louth Townline Road, near the For Sale sign, to walk the property. The current owners have drawings for a 3,000 sq. ft. bungalow. Buyers are encouraged to conduct their own due diligence regarding building regulations and requirements. When walking the property please be careful and do so at your own risk. (id:57448)
| MLS® Number | 40748189 |
| Property Type | Vacant Land |
| Features | Country Residential |
| Basement Type | None |
| Utility Water | None |
| Acreage | Yes |
| Sewer | No Sewage System |
| Size Depth | 721 Ft |
| Size Frontage | 37 Ft |
| Size Total Text | 2 - 4.99 Acres |
| Zoning Description | Nec |
https://www.realtor.ca/real-estate/28561383/pt-lt-3-effingham-street-fonthill
Contact us for more information
Judy Sweeting
Salesperson
(905) 945-0660
(905) 945-2982
www.remax-gc.com/
Compare listings
Compare